030 6377606 info@viva-casa.it































120 Mq
4 locali
3 camere
1 box auto
Rif. Annuncio: VQB568 del 27/02/2026
Vendita
€ 224.000
Bovezzo
030 6377606
Nel cuore di Bovezzo in una delle zone più richieste e apprezzate del paese, proponiamo un appartamento che si distingue per ciò che oggi è sempre più raro trovare: ampi spazi, esterno vivibile, ambienti ariosi e pertinenze complete, da notare la classe energetica "A4".
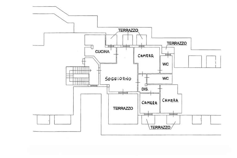
Questo quadrilocale colpisce fin dall’ingresso per le metrature generose e per una zona giorno che diventa il fulcro autentico della casa. Il soggiorno è ampio, avvolto dalla luce naturale e capace di accogliere sia momenti di relax sia convivialità. Da qui si accede a una terrazza panoramica profonda e vivibile, uno spazio da sfruttare in ogni stagione: area barbecue, tavolo per pranzi e cene all’aperto, angolo conversazione, non un semplice sfogo esterno, ma un vero prolungamento della zona living. La cucina separata anch'essa dispone di un funzionale balcone con doppio accesso.
Il corridoio accompagna alla zona notte dove troviamo una camere matrimoniale con bagno padronale, una camera doppia e una camera singola, tutte con armadiature su misura e tutte con accesso al proprio balcone: ogni ambiente risulta luminoso e arioso, ogni stanza ha il suo spazio esterno e in tutta la zona notte troviamo uno splendido parquet. I bagni sono due, uno a servizio dell’appartamento e uno dedicato alla camera matrimoniale, anche quest'ultimo con balcone, per una gestione pratica e riservata degli spazi.
A completare la proprietà, cantina e box auto spazioso, elementi che in questa zona fanno la differenza e che qui sono inclusi, senza compromessi.
L’immobile si inserisce in un contesto ordinato e curato, oggetto di recenti interventi di manutenzione come il rifacimento del tetto e le tinteggiature esterne, dettagli che testimoniano attenzione e valorizzano ulteriormente l’investimento.
Soluzioni di questa metratura, con terrazza realmente vivibile, doppia esposizione esterna e pertinenze complete, sono sempre più difficili da trovare a Bovezzo, soprattutto a questo prezzo.
Una casa pensata per chi non vuole adattarsi agli spazi, ma desidera finalmente viverli.
Per info e appuntamenti
IMMOBILIARE VIVA CASA
Tel. 0306377606