030 6377606 info@viva-casa.it













140 Mq
4 locali
3 camere
Rif. Annuncio: VQM577 del 10/04/2026
Vendita
€ 134.000
Marcheno
030 6377606
In piccolo contesto ben servito, proponiamo in vendita un appartamento quadrilocale sviluppato su due livelli, ideale per chi desidera ambienti spaziosi e versatili, facilmente adattabili alle diverse esigenze abitative.
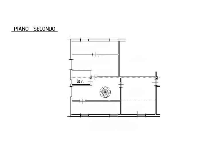
L’ingresso conduce a una zona giorno luminosa e ben distribuita: il soggiorno offre ampio spazio per una confortevole area relax, mentre la zona pranzo consente di accogliere comodamente ospiti e familiari. La cucina separata è abitabile e funzionale. Sul medesimo piano si trovano una camera matrimoniale, un bagno finestrato con doccia e una ulteriore stanza, perfetta come cameretta, studio o cabina armadio. Il piano superiore, mansardato e impreziosito da travi a vista, ospita una terza camera da letto, raccolta e accogliente. Completano il piano un secondo bagno di generose dimensioni con vasca e zona lavanderia, oltre ad un ulteriore stanza adatta a molteplici utilizzi, come palestra, stanza giochi, libreria, studio ecc...
Quest' ultima stanza rappresenta un vero valore aggiunto, spazio flessibile che può essere trasformato, offrendo soluzioni su misura per ogni stile di vita.
L’immobile si distingue per la buona luminosità, la distribuzione funzionale degli spazi e l’elevato potenziale di personalizzazione, risultando adatto sia a famiglie che a coppie o professionisti.
Possibilità di acquisto con arredamento.
Possibilità di box auto.
Si informa la gentile clientela che l'indirizzo è indicativo, l'ubicazione per motivi di privacy serve solo per identificare la zona del paese.
Contattaci per scoprire dal vivo ogni angolo di questa proposta.
IMMOBILIARE VIVA CASA
Tel. 0306377606